Haus Elfriede (Rickenbach)F


Haus Elfriede
Reservierung
Lage
Mindestaufenthalt: 7 Nächte
Ferienhäuser: Preis pro Tag, zzgl. Kurtaxe
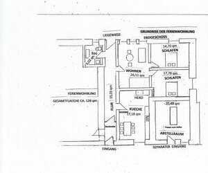
| TypC (für 2-4 Personen) | Preis A: 60,00 € | Preis für 2 Personen jede weitere Person: 12,00 € Größe: 128 qm Zimmer: 3 TV Nichtraucher |








eMail schicken










